De Bijenkorf Room On The Roof . Amsterdam
i29 interior architects . photos: © Ewout Huibers
Room On The Roof is located in the small tower on de Bijenkorf in Amsterdam, a unique spot in the historic heart of the city that has been converted into a cultural haven. Together with the Rijksmuseum in Amsterdam, de Bijenkorf has invited national and international artists to work on their projects in the studio, ranging from performances, poetry and light art to dance, music, film and photography.
Room On The Roof is fully equipped for the artists, with a telescope for enjoying panoramic views of the city, a bed for dreaming, a special menu for meals, and its Dam Square location providing a source of inspiration. The works resulting from time spent in Room On The Roof will be shared with the public. This could be through an exhibition in the store windows, an online live performance or an installation in or around de Bijenkorf. The program will also be tailored to major events taking place in Amsterdam and involve collaborations with cultural institutions across the Netherlands.
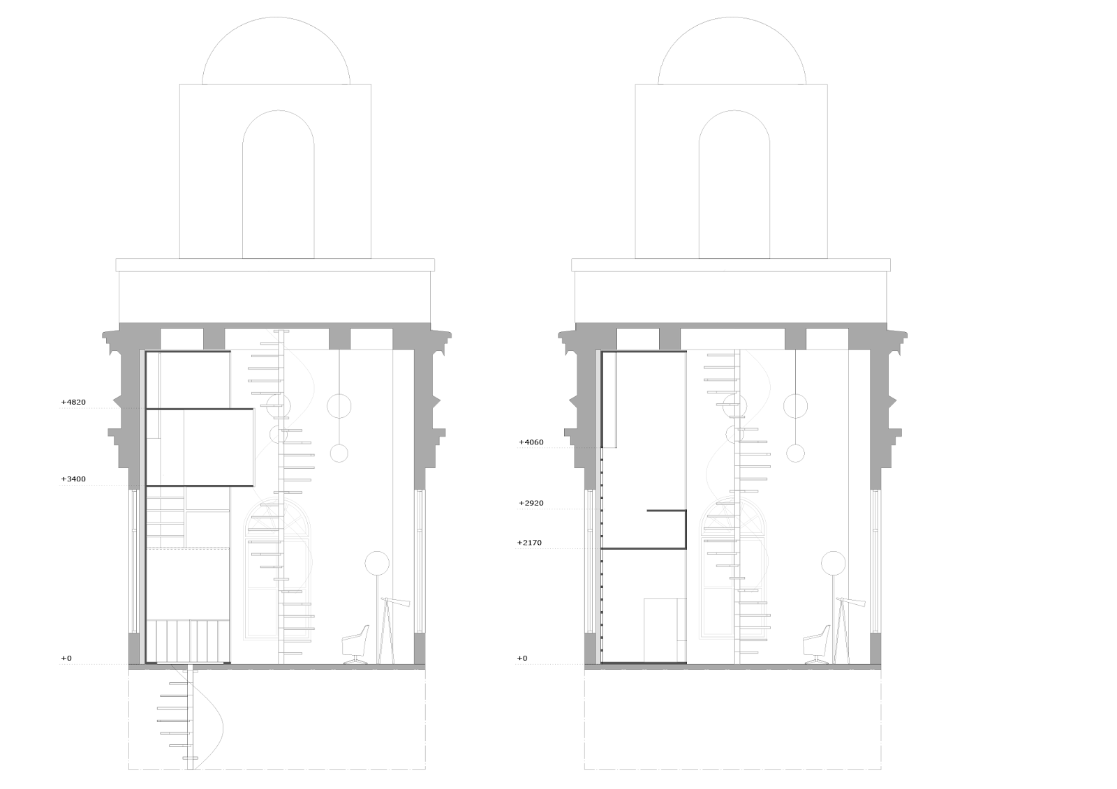
The interior of the tower is designed by i29 interior architects. Room On The Roof wants to offer the artist a unique experience. This was the starting point for i29 to realize an installation that brings together two worlds in one space; playing with scale and perception as in the universe of ‘Alice in Wonderland’. On one side a vertical installation of wooden volumes from floor to ceiling is placed, the other side is a full white space. The wooden installation includes a pantry, storage, desk and daybed. The functions have been stacked on top of each other as a kind of ‘living cabinet’ in order to experience the tower on different levels. Via small ladders you can climb up in the cabinet. Each level gives a new perspective and view to the outside world. All accessories like a telescope, armchair and lamps, are just like the space itself all white to make a contrast with the wooden volume. The monumental spiral stairs leading to the cupola has been restored and adds to the fairytale-like atmosphere.
Room On The Roof in the tower of de Bijenkorf Amsterdam
client: De Bijenkorf
design: i29 interior architects
photos: Ewout Huibers
builder: Fiction Factory
i29 interior architects . photos: © Ewout Huibers
Room On The Roof is located in the small tower on de Bijenkorf in Amsterdam, a unique spot in the historic heart of the city that has been converted into a cultural haven. Together with the Rijksmuseum in Amsterdam, de Bijenkorf has invited national and international artists to work on their projects in the studio, ranging from performances, poetry and light art to dance, music, film and photography.
Room On The Roof is fully equipped for the artists, with a telescope for enjoying panoramic views of the city, a bed for dreaming, a special menu for meals, and its Dam Square location providing a source of inspiration. The works resulting from time spent in Room On The Roof will be shared with the public. This could be through an exhibition in the store windows, an online live performance or an installation in or around de Bijenkorf. The program will also be tailored to major events taking place in Amsterdam and involve collaborations with cultural institutions across the Netherlands.
The interior of the tower is designed by i29 interior architects. Room On The Roof wants to offer the artist a unique experience. This was the starting point for i29 to realize an installation that brings together two worlds in one space; playing with scale and perception as in the universe of ‘Alice in Wonderland’. On one side a vertical installation of wooden volumes from floor to ceiling is placed, the other side is a full white space. The wooden installation includes a pantry, storage, desk and daybed. The functions have been stacked on top of each other as a kind of ‘living cabinet’ in order to experience the tower on different levels. Via small ladders you can climb up in the cabinet. Each level gives a new perspective and view to the outside world. All accessories like a telescope, armchair and lamps, are just like the space itself all white to make a contrast with the wooden volume. The monumental spiral stairs leading to the cupola has been restored and adds to the fairytale-like atmosphere.
Room On The Roof in the tower of de Bijenkorf Amsterdam
client: De Bijenkorf
design: i29 interior architects
photos: Ewout Huibers
builder: Fiction Factory
.jpg)
.jpg)
.jpg)
.jpg)
.jpg)
.jpg)
.jpg)
.jpg)
.jpg)
.jpg)
.jpg)
.jpg)
.jpg)
.jpg)
.png)
.png)
.png)


.jpg)











.jpg)
.jpg)
.jpg)

.jpg)
.jpg)
.jpg)

.jpg)
.jpg)


0 comentarios :
Publicar un comentario