Museo Arqueológico . Calviá
origen: gracias a Subarquitectura
El Museo Arqueológico de Calviá se aleja voluntariamente de las construcciones presentes, las de los últimos 50 años, y se sitúa voluntariamente entre el pretérito perfecto compuesto (he sido) y el futuro simple (seré).
Se inserta de manera respetuosa en este santuario arqueológico, adentrándose en esa incertidumbre temporal que existe entre lo inacabado y lo abandonado.
La vegetación existente se mantiene, no tan solo rodea el edificio, sino que lo invade y se introduce en sus entrantes y salientes. O, ¿era al revés?
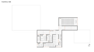
Un sistema aditivo de salas iguales, al que se añade la diferencia que aporta al sistema geométrico la aparición de las mitades de sala, tanto las longitudinales como transversales.
Esconde un sistema de funcionamiento binario. Abierto o cerrado. desde cada espacio puedes acceder a dos. Es una experimentación sobre las posibilidades organizativas de una trama isótropa, tan alejada del sistema de corredor y salas, como de una la planta diáfana.
El programa se estructura, de acuerdo a la forma canónica en este tipo de museos, en 4 grandes bloques. Publico, semipúblico, trabajo y almacenamiento.
La experiencia discretiza, pero no se pierde la continuidad, al contrario, el espacio es extremadamente fluido con las visiones transversales tanto hacia el exterior como hacia el interior.
Todas las salas son esencialmente iguales y realmente distintas. Sutiles diferencias de iluminación que aportan los lucernarios, ventanas y celosías.
Diferentes materiales y texturas sirven de elementos de orientación espacial.
El Museo Arqueológico de Calviá se aleja voluntariamente de las construcciones presentes, las de los últimos 50 años, y se sitúa voluntariamente entre el pretérito perfecto compuesto (he sido) y el futuro simple (seré).
Se inserta de manera respetuosa en este santuario arqueológico, adentrándose en esa incertidumbre temporal que existe entre lo inacabado y lo abandonado.
La vegetación existente se mantiene, no tan solo rodea el edificio, sino que lo invade y se introduce en sus entrantes y salientes. O, ¿era al revés?
Un sistema aditivo de salas iguales, al que se añade la diferencia que aporta al sistema geométrico la aparición de las mitades de sala, tanto las longitudinales como transversales.
Esconde un sistema de funcionamiento binario. Abierto o cerrado. desde cada espacio puedes acceder a dos. Es una experimentación sobre las posibilidades organizativas de una trama isótropa, tan alejada del sistema de corredor y salas, como de una la planta diáfana.
El programa se estructura, de acuerdo a la forma canónica en este tipo de museos, en 4 grandes bloques. Publico, semipúblico, trabajo y almacenamiento.
La experiencia discretiza, pero no se pierde la continuidad, al contrario, el espacio es extremadamente fluido con las visiones transversales tanto hacia el exterior como hacia el interior.
Todas las salas son esencialmente iguales y realmente distintas. Sutiles diferencias de iluminación que aportan los lucernarios, ventanas y celosías.
Diferentes materiales y texturas sirven de elementos de orientación espacial.
















.jpg)









.jpg)
.jpg)
.jpg)

.jpg)
.jpg)
.jpg)

.jpg)
.jpg)


0 comentarios :
Publicar un comentario