vivienda unifamiliar . La Guardia
ER arquitectos
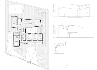
El proyecto responde a la necesidad de crear una vivienda unifamiliar exenta en su parcela, intentando en la mayor medida posible respetar las condiciones topográficas de la misma; así pues, como estrategia de intervención se plantea una ordenación de las cotas altimétricas de la parcela para crear en ella un gran jardín entre niveles intermedios que minimice en la medida de lo posible los movimientos de tierra.
La vivienda es una flor sembrada en el jardín y se sitúa en el centro de la parcela. Su geometría tallada y angulosa refleja la intención de huir de la idea habitual y predominante en el entorno de construir recintos en los que se vive y que se tapan con cubiertas (normalmente de teja) para guarecerse de la lluvia; de este modo, la vivienda se piensa como un todo, como un conjunto geométrico que define un espacio por su cualidad primaria de volumen, sin ceñirse a las restricciones de superficie impuestas en planta. Por lo tanto las paredes son techos y los techos suelos, evocando una continuidad de materiales que ponen de manifiesto la realidad volumétrica del espacio doméstico.
Se garantiza de este modo un mejor funcionamiento térmico y climático para un conjunto donde las juntas constructivas entre unos elementos y otros no existen, ya que en realidad sólo existe una única envolvente que se pliega para ir configurando las diferentes estancias de la vivienda.
Al mismo tiempo se ha planteado una selección de materiales en los que prima la economía de medios y la mayor eficacia para garantizar su correcto mantenimiento y su fácil reposición. Ello nos conduce a optar por materiales que doten a la vivienda de un marcado carácter neutro que se deje influenciar por la presencia de la vegetación de los jardines, a la vez que sirve como punto de encuentro para una postura crítica y de rechazo a los convencionalismos constructivos y formales del entorno.
EQUIPO TÉCNICO
ER arquitectos
Jesús Estepa Rubio, coordinador
Antonio Estepa Rubio
Rocío Lorite Rienda
José Alberto Orero Vigaray
Pedro Antonio Toledano Paulano, arquitecto técnico
ER arquitectos
El proyecto responde a la necesidad de crear una vivienda unifamiliar exenta en su parcela, intentando en la mayor medida posible respetar las condiciones topográficas de la misma; así pues, como estrategia de intervención se plantea una ordenación de las cotas altimétricas de la parcela para crear en ella un gran jardín entre niveles intermedios que minimice en la medida de lo posible los movimientos de tierra.
La vivienda es una flor sembrada en el jardín y se sitúa en el centro de la parcela. Su geometría tallada y angulosa refleja la intención de huir de la idea habitual y predominante en el entorno de construir recintos en los que se vive y que se tapan con cubiertas (normalmente de teja) para guarecerse de la lluvia; de este modo, la vivienda se piensa como un todo, como un conjunto geométrico que define un espacio por su cualidad primaria de volumen, sin ceñirse a las restricciones de superficie impuestas en planta. Por lo tanto las paredes son techos y los techos suelos, evocando una continuidad de materiales que ponen de manifiesto la realidad volumétrica del espacio doméstico.
Se garantiza de este modo un mejor funcionamiento térmico y climático para un conjunto donde las juntas constructivas entre unos elementos y otros no existen, ya que en realidad sólo existe una única envolvente que se pliega para ir configurando las diferentes estancias de la vivienda.
Al mismo tiempo se ha planteado una selección de materiales en los que prima la economía de medios y la mayor eficacia para garantizar su correcto mantenimiento y su fácil reposición. Ello nos conduce a optar por materiales que doten a la vivienda de un marcado carácter neutro que se deje influenciar por la presencia de la vegetación de los jardines, a la vez que sirve como punto de encuentro para una postura crítica y de rechazo a los convencionalismos constructivos y formales del entorno.
EQUIPO TÉCNICO
ER arquitectos
Jesús Estepa Rubio, coordinador
Antonio Estepa Rubio
Rocío Lorite Rienda
José Alberto Orero Vigaray
Pedro Antonio Toledano Paulano, arquitecto técnico














.jpg)









.jpg)
.jpg)
.jpg)

.jpg)
.jpg)
.jpg)

.jpg)
.jpg)


0 comentarios :
Publicar un comentario