Micro-Yuan’er . Beijing
Standard Architecture . photos: © Su Shengliang
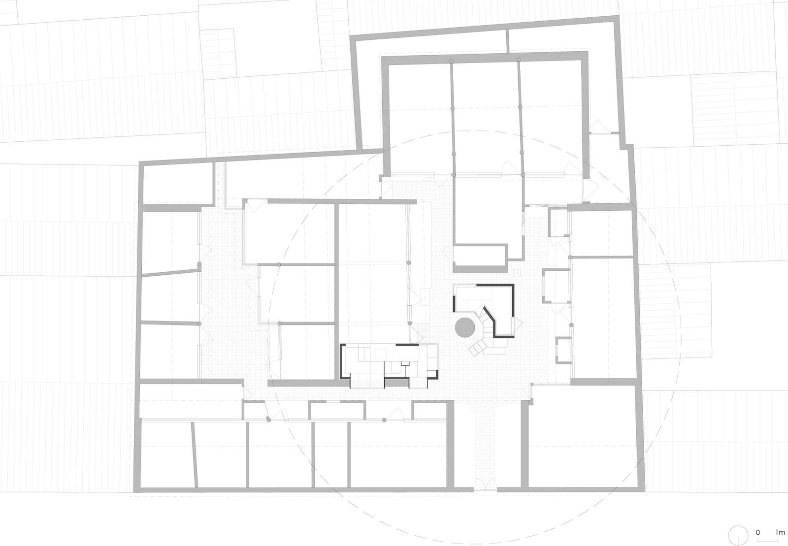
Micro- Yuan’er is a project by Zhang Ke’s ZAO/standardarchitecture team to renovate a typical “Big-Messy Courtyard” of Cha’er Hutong #8 in Dashilar area. Micro-Yuan’er is a new type of organic renewal in Beijing old city by inserting a mini art space and a mini library. The project is sponsored by leading international brand CAMERICH.
© Zhang Mingming
© Zhang Mingming
© Zhang Mingming
Standard Architecture . photos: © Su Shengliang
Micro- Yuan’er is a project by Zhang Ke’s ZAO/standardarchitecture team to renovate a typical “Big-Messy Courtyard” of Cha’er Hutong #8 in Dashilar area. Micro-Yuan’er is a new type of organic renewal in Beijing old city by inserting a mini art space and a mini library. The project is sponsored by leading international brand CAMERICH.
© Zhang Mingming
© Zhang Mingming
© Zhang Mingming
.jpg)
.jpg)
.jpg)
.jpg)
.jpg)
.jpg)
.jpg)
.jpg)
.jpg)
.jpg)
.jpg)
.jpg)
.jpg)
.jpg)
%2B%C2%A9%2BZhang%2BMingming.jpg)
%2B%C2%A9%2BZhang%2BMingming.jpg)
%2B%C2%A9%2BZhang%2BMingming.jpg)
.jpg)
.jpg)
.png)
.png)
.png)
.png)


.jpg)









.jpg)
.jpg)
.jpg)

.jpg)
.jpg)
.jpg)

.jpg)
.jpg)


0 comentarios :
Publicar un comentario